2-ZI.-WHG. MIT KÜCHE IN PENTHOUSE ETAGE – ERSTBEZUG!

Straubing

Objektbeschreibung

Baujahr

2025

Zimmer

2

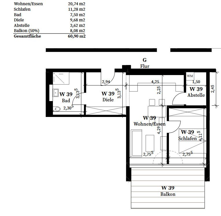
Wohnfläche

61 m²

Lage

Die Wohnung befindet sich im Westen von Straubing in einer der besten Wohngegenden der Stadt. Ruhige, aber dennoch zentrale Lage, wenige Gehminuten von der Innenstadt, dem Eisstadion und dem Eisweiher. Ideal zum Spazierengehen.

Objekt

Exklusive Neubauwohnung für gehobene Ansprüche im Projekt WEITBLICK.

Merkmale

Die Wohnung bietet höchsten Wohnkomfort mit hochwertiger Ausstattung: - Einbauküche - Massiv-Parkettböden mit Fußbodenheizung - lichtdurchflutete Räume durch bodentiefe Fenster - Penthouse Etage mit Balkon - Bad mit bodengleicher Dusche - Einbauschrank im Flur - moderner Aufzug - Kellerabteil - elektrische Außenjalousien - PV-Anlage und Wärmepumpe Die Wohnung diente als Musterwohnung - wird aber unmöbliert vermietet

Details:

Warmmiete: 1.060€
Kaltmiete: 850€
Stellplatzmiete: 80€
Nebenkosten: 130€
Immobilienart: Wohnung
Referenz-Nr.: 2419_39

Ausstattung:

Baujahr: 2025
Ausstattung-Kategorie: Gehoben
Serviceleistungen: Reinigung
Keller: Ja
Bauweise: Massiv
Wohnfläche: 61 m2
Nutzfläche: 7.5 m2
Anzahl Zimmer: 2
Anzahl Schlafzimmer: 1
Anzahl Badezimmer: 1
Anzahl Stellplätze: 1

Energie & Bausubstanz:

Energie Wertklasse: A+
Jahrgang: 2014
Heizungsbaujahr: 2025
Energieausweistyp: BEDARF
Gültig bis: 28.06.2032
Incl. Warmwasser: Nein

Immobilien-Anfrage

    * Pflichtfeld

    Sie haben Fragen zur Immobilie, möchten einen Besichtigungstermin vereinbaren oder Infomaterial anfordern?

    Kontaktieren Sie uns ganz einfach über das Formular und wir helfen Ihnen bei Ihrem Anliegen weiter.


    Kränzel Immobilien & Hausverwaltung
    Herr Mario Ch. Kränzel
    Regensburger Str. 79
    94315 Straubing

    fon +49 (9421) 9932-16
    fax +49 (9421) 9932-13